Gruas
Conheça Alguns modelos de Gruas que trabalhamos.
Nossas Gruas têm como característica principal servir obras de pequeno a grande porte com possibilidade de atingir grandes alturas.
Oferecem vantagens por sua rápida montagem e por ter um sistema que permite seu reboque na obra, o que possibilita o uso do equipamento em diversos pontos de um mesmo empreendimento a um baixo custo.
Oferecem vantagens por sua rápida montagem e por ter um sistema que permite seu reboque na obra, o que possibilita o uso do equipamento em diversos pontos de um mesmo empreendimento a um baixo custo.
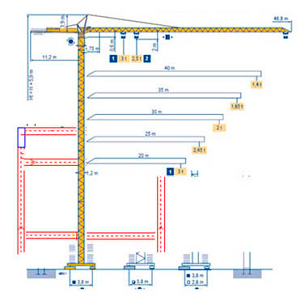
Os modelos de Gruas auto-montantes e torre fixa que temos a disposição, têm altura que parte de 10 até 150 metros, e lança de 18 a 62 metros, carga na ponta de 0,8 a 2,5 t e carga máxima de até 4 t.
Trabalhamos com as melhores Gruas do mercado como:
LIEBHERR, POTAIN, FM, SAEZ
A Gobbo Gruas além de atender para locação e venda em todo Brasil, oferece montagem e desmontagem da Grua, manutenção, operador e assistência 24 hrs. Atendendo para locação e venda em todo Brasil.
Pinhais - Pr
A Gobbo Gruas loca e vende 4 tipos de Gruas:
Grua Ascensional
A Grua Ascensional é fixada entre lajes normalmente instalada dentro do poço do elevador por meio de gravatas metálicas
Grua Telescopada
As Gruas Torres Telescopadas são as mais indicadas para construções em altura ate 180 metros ou construções especiais de médio porte, com um amplo leque de modelos e capacidades. Podendo atender 01 a 03 torres simultaneamente. Exemplo de prédios com 5 a 80 pisos, barragens, pontes rodoviárias, pátios de materiais, etc. Disponíveis com até 4 velocidades, podendo ser complementada com inúmeros opcionais em função da necessidades da sua obra
Grua Fixa
A Grua fixa caracteriza-se por ter base da torre chumbada dentro de um bloco de concreto. Sua ascensão e ancoragem são feitas de acordo com a necessidade da obra, sendo que a fixação da ancoragem e a altura livre serão limitadas de acordo com cada fabricante e a capacidade de cada equipamento.
Grua Auto-Montante
As Gruas auto-montante são montadas e desmontadas com um único movimento. Sua altura pode chegar a 30 metros e sua lança a 50 metros de comprimento. Sua montagem e desmontagem são realizadas por sistema hidráulico que possibilita mais segurança e menos manutenção.
A Principal vantagem dessas gruas é sua versatilidade. Pode ser facilmente movida devido ao seu conjunto de rodas pneumáticas facilmente inseríveis. No entanto sua aplicação se define por uma significativa redução no tempo e custo de montagem e desmontagem dessas gruas além fornecerem ótima solução onde não se pode inserir maquinário mais pesado que promova soluções em altura e condições adversas.
![]](/images/logo-default.png)



